Banana Blava

Ristorante in Costa Brava

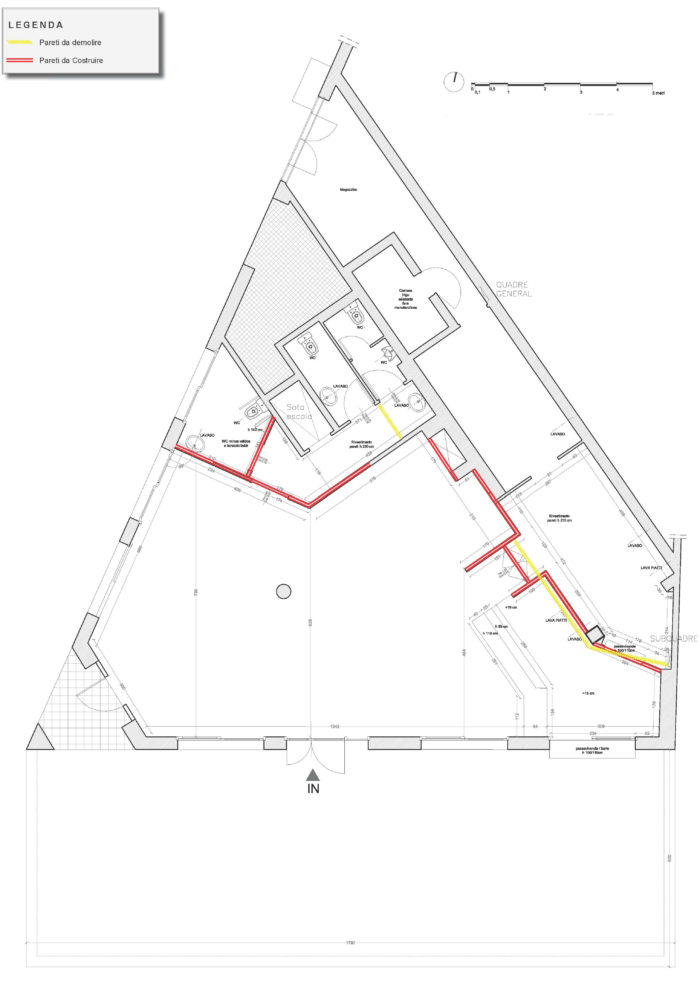
Ristrutturazione di un locale in Costa Brava località Castel de Aro (Spagna)

Il ristorante tradizionale di circa 150 mq e 80 mq esterni, era organizzato con una forte griglia ortogonale scandita da un bancone centrale che distribuiva lo spazio irregolare con una simmetria forzata,accentuata dalla maglia quadrata di pavimento e controsoffitto.
Arredi e colori erano classici, antiquati, nell’intenzioni della nuova gestione dare un look differente al locale attraendo clienti giovani e creare un immagine coordinata fresca restando in un budget contenuto e in tempi di realizzazione dell opera molto stretti (40 giorni).

Progetto

Fluido design Studio

Crediti Fotografici

Manlio Leo

Tipologia

Architettura d'Interni

Il progetto di restyling si è focalizzato sullo scardinare la suddetta griglia studiando i flussi di personale, camerieri e clienti: si è deciso di decentrare il bancone vicino ad una delle finestre permettendone la fruizione dall’ampio spazio esterno attrezzato con i tavoli per il servizio dei clienti.
A ridosso dello lato cieco dell’immobile un grande blocco servizi che include il bagno la cucina per i piatti caldi e la zona di preparazione dei piatti freddi.

Fatta eccezione per i bagni, non è stato possibile cambiare la pavimentazione per limiti di budget, quindi la nuova griglia distributiva è stata evidenziata dalla disposizione dei tavoli e attraverso una fila di faretti incassati che seguono il nuovo percorso progettato.
I tavoli sono pensati come fulcri di socialità e tepore all’interno del locale sono illuminati quindi da pendenti in maglia di legno intrecciato che amplificano il senso di calore.
Il bancone è rivestito con le tipiche maioliche catalane che seguono un motivo geometrico che si rifà alla tradizione locale e richiama le onde del vicino mare.

L’immagine coordinata è stata studiata insieme al proprietario Gonzalo Emanuel Palma, il risultato ottenuto è stato frutto di una costante collaborazione tra lo studio e i clienti.
Banana Blava nella prima stagione di apertura ha quasi triplicato le aspettative di ricavo

Progetto

Fluido design Studio

Crediti Fotografici

Manlio Leo

Tipologia

Architettura d'Interni

Condividi questo Progetto

Contattaci

Per sopralluoghi e preventivi puoi scriverci tramite questo form. Ci impegniamo sempre al massimo per rispondere al più presto a tutti i messaggi che riceviamo.

    ©FLUIDO Design Studio
    Italy, Rome, Via Merulana

    +39 339 61 71 634
    info@fluidodesign.it

    GDPR

    • Consenso Cookie

    Consenso Cookie

    Questo sito fa uso di cookie. La presente informativa ha lo scopo di salvaguardare la tua privacy. Contattaci se hai domande o problemi riguardo l’utilizzo dei tuoi dati personali e saremo felici di assisterti.

    Usando questo sito e i suoi servizi, acconsenti all’utilizzo dei tuoi dati personali come descritto nella nostra Dichiarazione Privacy.

    error: Contenuto protetto