Casa VG_S

Mini appartapento per un single

Ristrutturazione completa di un piccolo appartamento in un complesso di edifici progettati dall’Arch. Ludovico Quaroni. La ristrutturazione ci ha portato a relazionarci con vincoli strutturali ed impiantistici forti: intorno ad essi si è concentrato il design dello spazio, la decisione è stata quella di rafforzare e palesare tali vincoli.

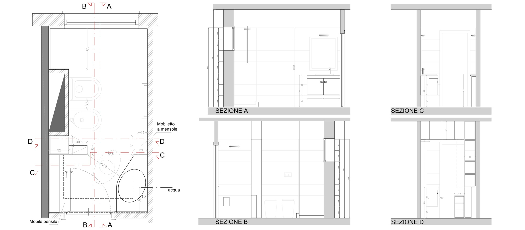
I 55 mq dell’appartamento sono distribuiti in pianta all’interno di un rettangolo suddiviso in 3 parti da due setti portanti in cemento armato che accolgono anche le terminazioni dell impianto idraulico, posizionato a pavimento.
All’interno di questa maglia rigida e definita la progettazione si è concentrata nella ottimizzazione della luce naturale, carente nella situazione ante operam, poichè proveniente da un solo fronte finestrato posto a sud ovest.

Abbiamo demolito la parete della cucina smaterializzandola in una libreria in muratura che divide gli ambienti ma lascia passare la luce e diventata elemento caratterizzante dell’ingresso.
Sopra di essa una veletta in cartongesso passante tra gli ambienti cucina e corridoio, unifica lo spazio e accoglie l’illuminazione a faretti led incassati e un soppalco fruibile dalla camera da letto.

Il setto portante che divide il soggiorno è stato lasciato nudo, caratterizzandolo con una tinta grigio perla cangiante e dei faretti per un’illuminazione radente di forte impatto scenico.
Le tinte cangianti dal colore madre perla su sfumature tenui di lilla o tortora ci sono servite per sottolineare cromaticamente gli elementi caratterizzanti dell’intervento di interior design, quali sono la veletta in cartongesso, che corona la cucina e unifica lo spazio, e la cornice della libreria-divisorio.

Progetto

Arch. Manlio Leo, Arch. Mara Poli

Tipologia

Interior Design

Tutti i mobili sono stati disegnati e realizzati su misura, in noce canaletto nel bagno, in laccato bianco negli altri ambienti, così da rendere mimetici gli armadi e l’ambiente lavanderia situato nel corridoio: i mobili bianchi permettono di mantenere la continuità dello spazio e massimizzare la quantità di luce. Il grès effetto parquet in rovere, posato in tre formati differenti, è stato utilizzato per il pavimento di tutti gli ambienti, così da aumentare la dimensione dello spazio percepita.

Progetto

Arch. Manlio Leo, Arch. Mara Poli

Tipologia

Interior Design

Condividi questo Progetto

Contattaci

Per sopralluoghi e preventivi puoi scriverci tramite questo form. Ci impegniamo sempre al massimo per rispondere al più presto a tutti i messaggi che riceviamo.

    ©FLUIDO Design Studio
    Italy, Rome, Via Merulana

    +39 339 61 71 634
    info@fluidodesign.it

    GDPR

    • Consenso Cookie

    Consenso Cookie

    Questo sito fa uso di cookie. La presente informativa ha lo scopo di salvaguardare la tua privacy. Contattaci se hai domande o problemi riguardo l’utilizzo dei tuoi dati personali e saremo felici di assisterti.

    Usando questo sito e i suoi servizi, acconsenti all’utilizzo dei tuoi dati personali come descritto nella nostra Dichiarazione Privacy.

    error: Contenuto protetto