Lounge Bar

Restyling di un locale alle porte di Roma da adibire a lounge bar, realizzato in collaborazione con l’Arch.Fabio Contini e l’Arch. Francesco Spendio.

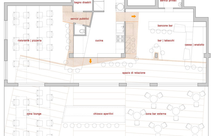
Sono state proposte due alternativie per la riorganizzazione dello spazio legate entrambe all’utilizzo di un materiale che caratterizzasse fortemente l’ambiente, attraverso la rifunzionalizzazione dello spazio, lasciato neutro rispetto a questo elemento dominante.

Nella prima ipotesi il volume dei servizi (cucina, servizi igienici, somministrazione), è l’elemento generatore e caratterizzante, mentre nella seconda ipotesi il fulcro del progetto e quindi dello spazio diventa la zona dedicata ai clienti.

Progetto

Arch. F.Contini, Arch. G.Plinio, Arch. F.Spendio

Tipologia

Restyling

Progetto

Arch. F.Contini, Arch. G.Plinio, Arch. F.Spendio

Tipologia

Restyling

Condividi questo Progetto

Contattaci

Per sopralluoghi e preventivi puoi scriverci tramite questo form. Ci impegniamo sempre al massimo per rispondere al più presto a tutti i messaggi che riceviamo.

    ©FLUIDO Design Studio
    Italy, Rome, Via Merulana

    +39 339 61 71 634
    info@fluidodesign.it

    GDPR

    • Consenso Cookie

    Consenso Cookie

    Questo sito fa uso di cookie. La presente informativa ha lo scopo di salvaguardare la tua privacy. Contattaci se hai domande o problemi riguardo l’utilizzo dei tuoi dati personali e saremo felici di assisterti.

    Usando questo sito e i suoi servizi, acconsenti all’utilizzo dei tuoi dati personali come descritto nella nostra Dichiarazione Privacy.

    error: Contenuto protetto