Bettina Boutique

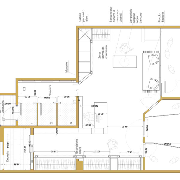
Progetto preliminare di ristrutturazione di una butique di abbigliamento a Roma.

Nelle intenzioni progettuali l’utilizzo della luce per risaltare i capi esposti attraverso delle cornici luminose.

Il budget ridotto ha indirizzato il progetto verso forme semplici e materiali economici.

I corpi luminosi sono incassati negli arredi, questi realizzati in legno scuro entrano in contrasto con i fondali degli espositori che diffondono la luce sugli abiti, risaltandoli.

La parete dietro al bancone è un arabesco in rame retroilluminato, col logo della boutique; il pavimento è in resina chiara, a tratti riflettente mentre il controsoffitto è un tortora molto scuro, lucido.

Progetto

Arch. Mara Poli, Arch. Manlio Leo

Tipologia

Interior Design

Progetto

Arch. Mara Poli, Arch. Manlio Leo

Tipologia

Interior Design

Condividi questo Progetto