Bilocale

Progettazione preliminare e definitva per un piccolo appartamento di una giovane coppia.

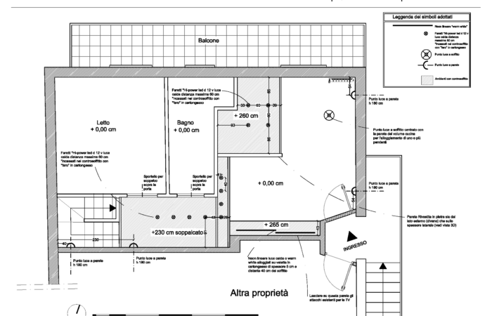
L’intervento è stato indirizzato a rendere la zona giorno uno spazio piacevole e funzionale, nonostante la modesta metratura. È stato progettato un blocco cucina centrale come elemento caratterizzante e distributivo dell’intero immobile. Particolare attenzione è stata posta poi alla calibrazione dei volumi per identificare le diverse aree, attraverso l’uso di controsoffitti in cartongesso e di diverse fonti luminose.

Progetto

Arch. Manlio Leo

Tipologia

Interior Design

Progetto

Arch. Manlio Leo

Tipologia

Interior Design

Condividi questo Progetto

Contattaci

Per sopralluoghi e preventivi puoi scriverci tramite questo form. Ci impegniamo sempre al massimo per rispondere al più presto a tutti i messaggi che riceviamo.

    ©FLUIDO Design Studio
    Italy, Rome, Via Merulana

    +39 339 61 71 634
    info@fluidodesign.it

    GDPR

    • Consenso Cookie

    Consenso Cookie

    Questo sito fa uso di cookie. La presente informativa ha lo scopo di salvaguardare la tua privacy. Contattaci se hai domande o problemi riguardo l’utilizzo dei tuoi dati personali e saremo felici di assisterti.

    Usando questo sito e i suoi servizi, acconsenti all’utilizzo dei tuoi dati personali come descritto nella nostra Dichiarazione Privacy.

    error: Contenuto protetto